Kitchen view of the Jackson House, a modern mountain home in Jackson Wyoming designed by architect Rob Michel of Michel Architects

jackson residence

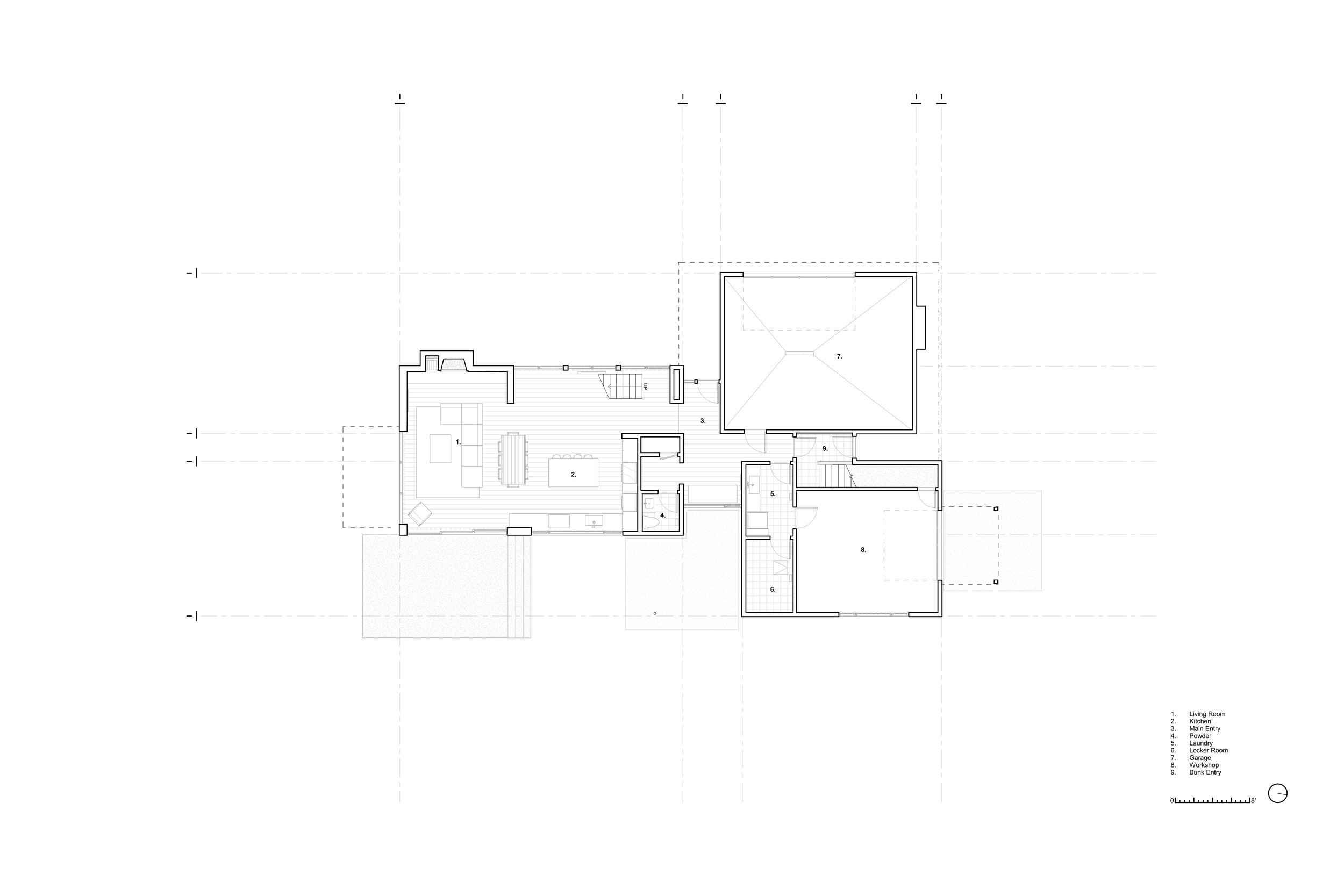
Nestled in the foothills just south of the Teton mountain range, the Jackson House represents an active family retreat with the unique need to accommodate many types of visitors. Pitched roofs accentuate the two-winged layout separating the three-bedroom home from the attached workshop and bunkroom apartment above, ensuring a seamless blend of private family living with the capacity to host substantial groups.

Large glass openings surrounded by charred wood, concrete, and steel merge with the surrounding natural landscape while providing breathtaking panoramic views of the forest floor and the peaks beyond.

Location
Jackson, WY

Status
Complete

Project Team
Architect: Michel Architects
Contractor: Goodrich Built

Photography
Michel Architects

The home is oriented to thoughtfully frame expansive views of the Teton Range from the Jackson House.

Main House under construction - January 2024